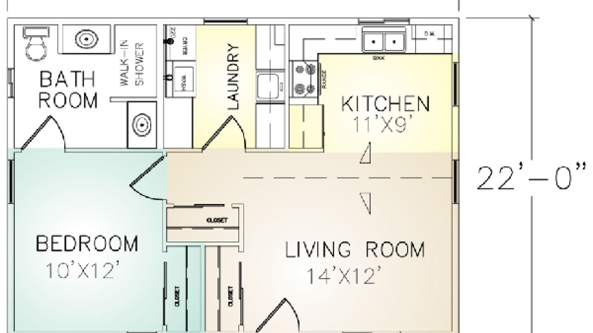
The Sonoma panelized kit home design features a welcoming Living/Dining area with vaulted ceilings and a spacious bathroom with two sinks and a walk-in shower. Other popular features include an expansive laundry room with wash tub, ample storage, and a utility closet. The Sonoma Plan provides extra living space on your existing property for family housing, home office, backyard retreat, or rental income.
FAQs:
Prefab homes provide you with the benefits of improved quality control, better energy efficiency, faster build times, cost-effectiveness, and customization.
The durability of a prefab home depends on the materials used, the contractor who put it together, and whether maintenance is regularly done after the fact. If all of these are well done, a prefab home's durability can easily outlast a standard-built house.
The average cost of medium-large, one-story prefabricated home materials is $150,000-$200,000. Additional building costs may vary depending on your local labor costs, land price, and other fees like licensing and permits.
A manufactured home is almost fully constructed off-site and then transported to the building site, while a modular home is fully prefabricated but with little to no customization to better mass production capabilities.
You can buy under 100k the 2-story 1-bedroom home, 2-story barn with 1 studio and 2-car garage, or 1-story and 2-bedroom prefab houses.
Although the exact times can vary due to conditions like team size and weather, we estimate projects to take between 2 and 5 weeks on average.
The average cost of a small to medium one-story prefabricated home is ranging between $50,000 and $100,000.
If there are certain features of a pre-engineered design you don’t like, there are a range of modifications available, or even a custom plan, to meet all your requirements.