Meadow View

Meadow View

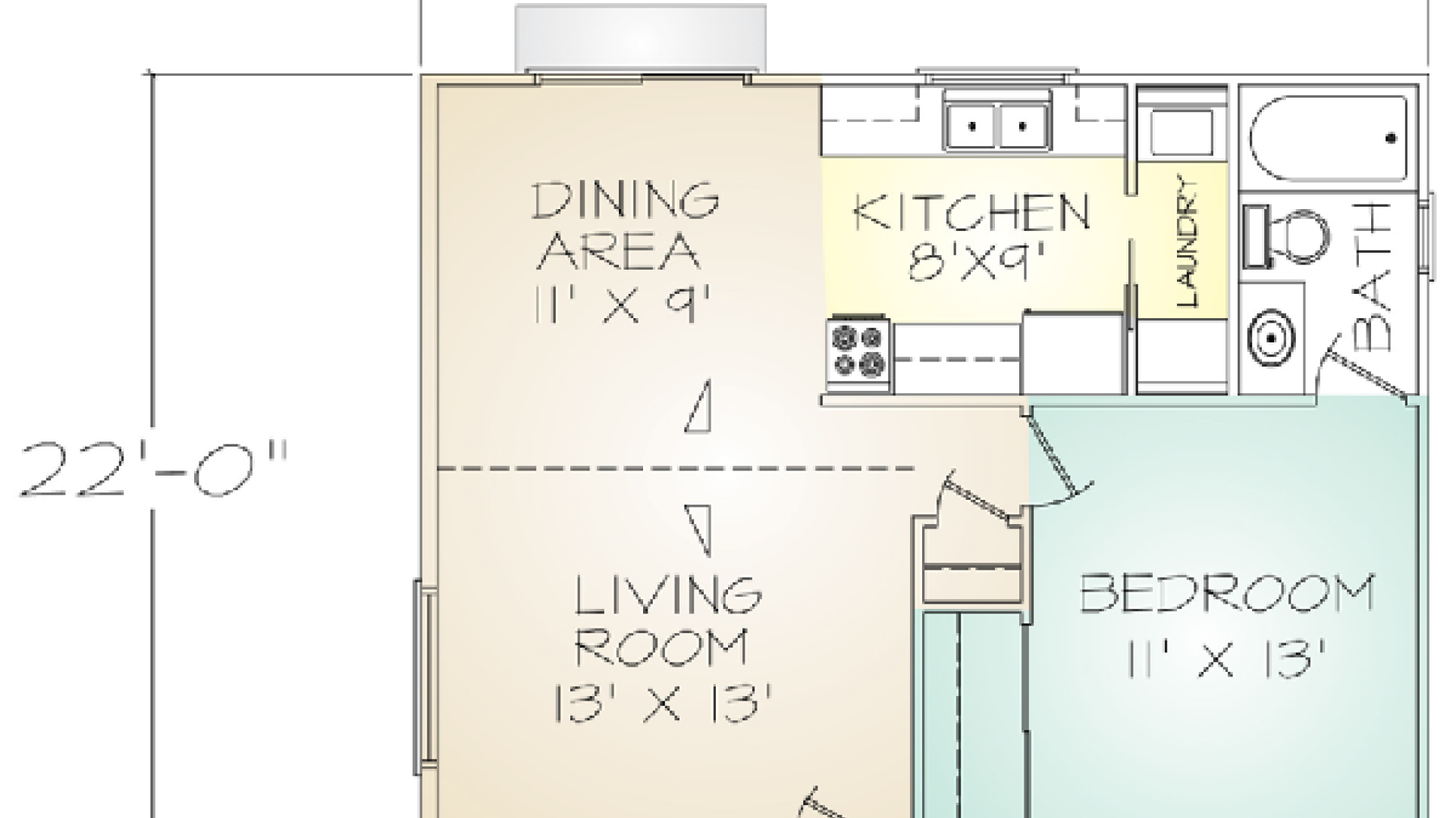
The Meadow View panelized kit home was designed to be a basic, yet comfortable, cabin or detached in-law unit. The vaulted living and dining rooms provide a feeling of far more space than the floor plan might otherwise suggest. This efficient plan even includes space for a clothes washer and dryer.

FAQs:

Prefab homes provide you with the benefits of improved quality control, better energy efficiency, faster build times, cost-effectiveness, and customization.

Panelized Kit Home Specs:

  • Total Living Space: 616 ft² (57 m²)
  • Bedrooms: 1
  • Bathrooms: 1
  • Garage: N/A
  • Ceiling Height: 8'
  • Covered Porch: N/A
  • Home Plan Cost: Included
  • Building Kit Cost: $41,163
  • Style: 1 Story
  • Minimum Payment: $3,700
Download Free Plan Review Set

Want More Information?

Invalid Input
Invalid Input
Invalid Input
Invalid Input
Invalid Input

Add to Cart

FAQs:

You can buy under 100k the 2-story 1-bedroom home, 2-story barn with 1 studio and 2-car garage, or 1-story and 2-bedroom prefab houses.

Contact Us

We will contact you and draw up requirements for the project and estimate.
Please enter your first name
Please enter your last name
Please enter a valid email address
Invalid Input