Huntington

Huntington

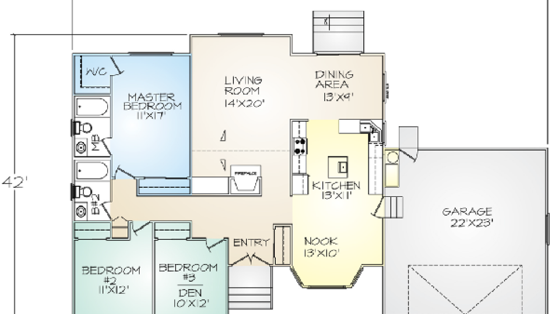
The Huntington panelized kit home offers a traditional ranch-style floor plan. This one-story home incorporates a formal entry with double doors and a formal dining room. The kitchen boasts convenient features such as an island with a second sink and easy access to both the formal dining room and breakfast nook. The master bedroom enjoys extra clothes storage areas such as a walk-in closet as well as a private bath.

FAQs:

Prefab homes provide you with the benefits of improved quality control, better energy efficiency, faster build times, cost-effectiveness, and customization.

Panelized Kit Home Specs:

  • Total Living Space: 1,582 ft² (147 m²)
  • Bedrooms: 3
  • Bathrooms: 2
  • Garage: 2 Car
  • Ceiling Height: 8’
  • Covered Porch: 25 ft² (2 m²)
  • Home Plan Cost: Included
  • Building Kit Cost: $107,665
  • Style: 1 Story
  • Minimum Payment: $5,100
Download Free Plan Review Set

Want More Information?

Invalid Input
Invalid Input
Invalid Input
Invalid Input
Invalid Input

Add to Cart

FAQs:

You can buy under 100k the 2-story 1-bedroom home, 2-story barn with 1 studio and 2-car garage, or 1-story and 2-bedroom prefab houses.

Contact Us

We will contact you and draw up requirements for the project and estimate.
Please enter your first name
Please enter your last name
Please enter a valid email address
Invalid Input