FAQs:
Looking at square footage, the average size of a prefab granny flat is 800-1000 sq ft.
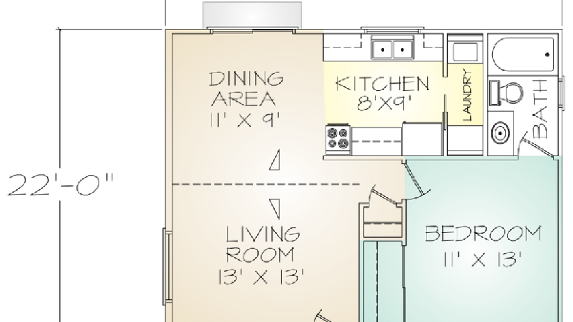
Our smaller prefab granny flat kits always include at least 1 bedroom, a kitchen, a living room, and a bathroom. Our bigger granny flats tend to include a dining room and up to 2 bathrooms and bedrooms.
The cost of a prefabricated granny flat home kit is ranging anywhere between $25,000 to $75,000.
An easy way to identify if a home kit is designed with T.H.E. (Transitional Home Environment) in mind is to check for step-less entries and wider hallways/doorways. If the granny flat you’ve been eyeing doesn’t fit the bill, PMHI can always help by customizing it to your needs, whether you'd like the flat to include T.H.E. or other features.


