Springfield

Springfield

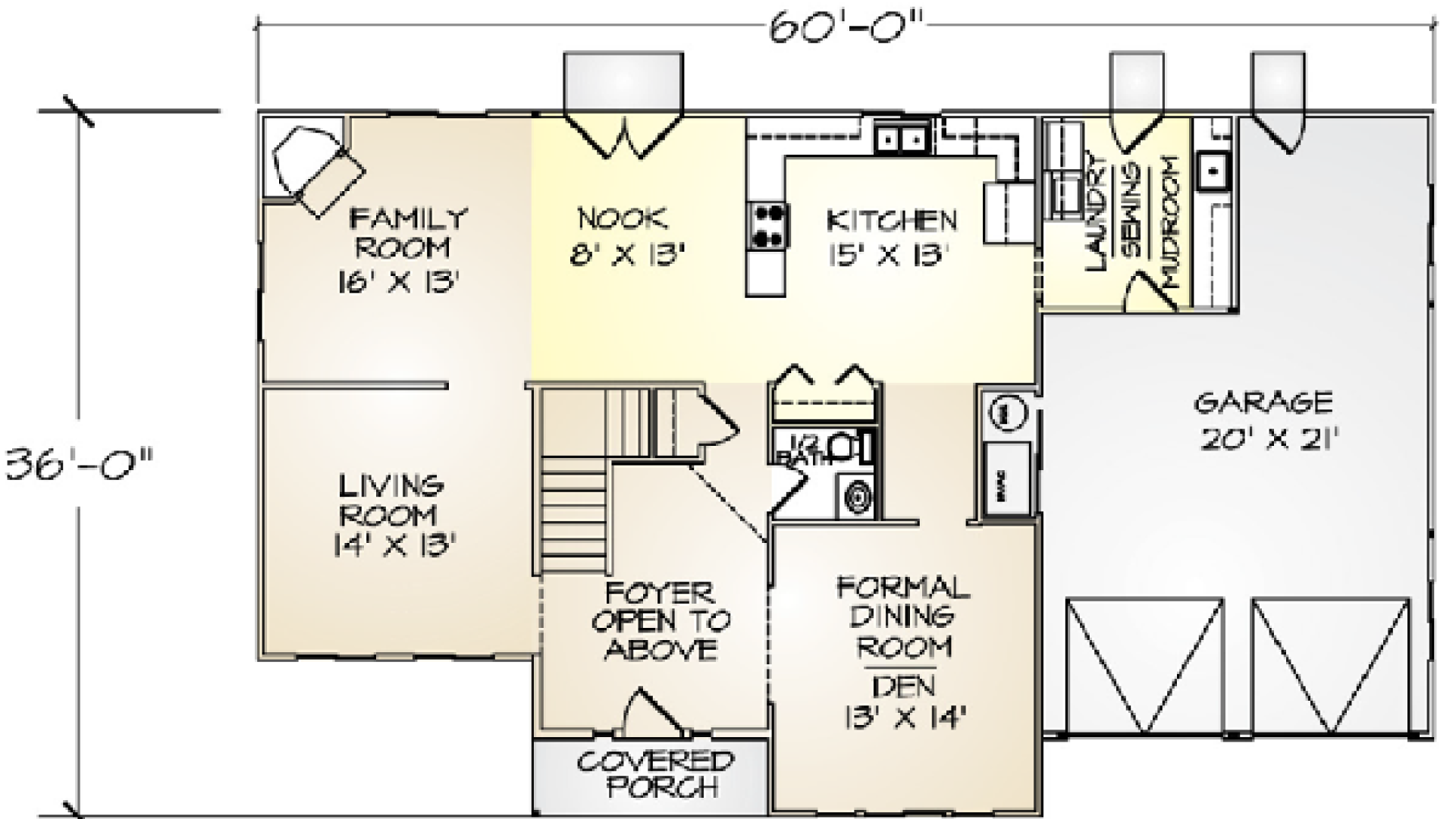
The Springfield panelized kit home features a formal entry foyer with immediate access to the formal dining and living rooms. The large family room with an informal eating area next to the kitchen is perfect for everyday family use. The master suite has a large walk-in closet off of the compartmentalized master bath area. The oversized two-car garage even has an area for a golf cart, shop, or a home office - or just more storage if needed.

FAQs:

You can buy under 100k the 2-story 1-bedroom home, 2-story barn with 1 studio and 2-car garage, or 1-story and 2-bedroom prefab houses.

Panelized Kit Home Specs:

  • Total Living Space: 2,601 ft² (242 m²)
  • Bedrooms: 4
  • Bathrooms:
  • Garage: 2½ Car
  • Ceiling Height: 8’
  • Covered Porch: 48 ft² (4 m²)
  • Home Plan Cost: Included
  • Building Kit Cost: $181,321
  • Style: 2 Story
  • Minimum Payment: $6,800
Download Free Plan Review Set

Want More Information?

Invalid Input
Invalid Input
Invalid Input
Invalid Input
Invalid Input

Add to Cart

Contact Us

We will contact you and draw up requirements for the project and estimate.
Please enter your first name
Please enter your last name
Please enter a valid email address
Invalid Input