Manchester

Manchester

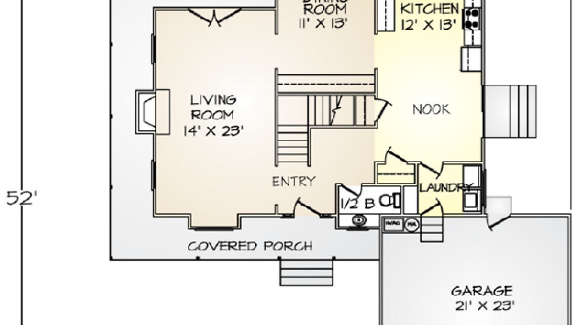
The Manchester panelized kit home is another practical and efficient country home plan featuring formal and informal living areas. The large covered porch offers relaxation and shade. The bonus/recreation room over the garage could easily be used as another bedroom, hobby area, or home office.

FAQs:

You can buy under 100k the 2-story 1-bedroom home, 2-story barn with 1 studio and 2-car garage, or 1-story and 2-bedroom prefab houses.

Panelized Kit Home Specs:

  • Total Living Space: 2,369 ft² (220 m²)
  • Bedrooms: 3+ Bonus
  • Bathrooms:
  • Garage: 2 Car
  • Ceiling Height: 8’
  • Covered Porch: 325 ft² (30 m²)
  • Home Plan Cost: Included
  • Building Kit Cost: $185,626
  • Style: 2 Story
  • Minimum Payment: $6,800
Download Free Plan Review Set

Want More Information?

Invalid Input
Invalid Input
Invalid Input
Invalid Input
Invalid Input

Add to Cart

Contact Us

We will contact you and draw up requirements for the project and estimate.
Please enter your first name
Please enter your last name
Please enter a valid email address
Invalid Input