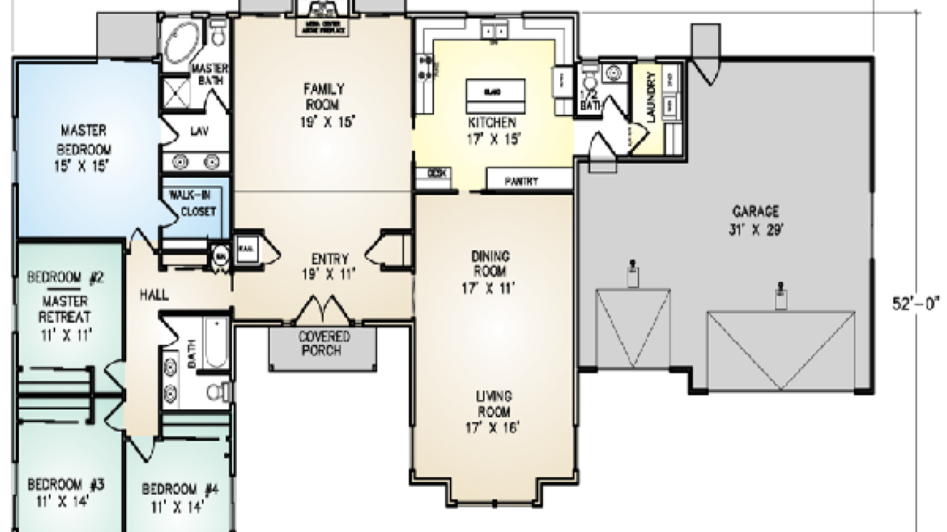
The San Rafael panelized kit home is a spacious plan with vaulted ceilings, bay windows, and a grand entry. The open living and dining areas flow into a separate family room with a picturesque view of the backyard. The kitchen, laundry room, and half bath are conveniently located only steps away from the main living areas. This plan has four bedrooms, one of which can be adapted for use as a master retreat or den. The third-car area of the garage can be easily modified as a fifth bedroom, home office, or shop.
FAQs:
Prefab homes provide you with the benefits of improved quality control, better energy efficiency, faster build times, cost-effectiveness, and customization.
The durability of a prefab home depends on the materials used, the contractor who put it together, and whether maintenance is regularly done after the fact. If all of these are well done, a prefab home's durability can easily outlast a standard-built house.
The average cost of medium-large, one-story prefabricated home materials is $150,000-$200,000. Additional building costs may vary depending on your local labor costs, land price, and other fees like licensing and permits.
A manufactured home is almost fully constructed off-site and then transported to the building site, while a modular home is fully prefabricated but with little to no customization to better mass production capabilities.
Prefab homes provide you with the benefits of improved quality control, better energy efficiency, faster build times, cost-effectiveness, and customization.
The durability of a prefab home depends on the materials used, the contractor who put it together, and whether maintenance is regularly done after the fact. If all of these are well done, a prefab home's durability can easily outlast a standard-built house.
The average cost of medium-large, one-story prefabricated home materials is $150,000-$200,000. Additional building costs may vary depending on your local labor costs, land price, and other fees like licensing and permits.
A manufactured home is almost fully constructed off-site and then transported to the building site, while a modular home is fully prefabricated but with little to no customization to better mass production capabilities.