Avalon

Avalon

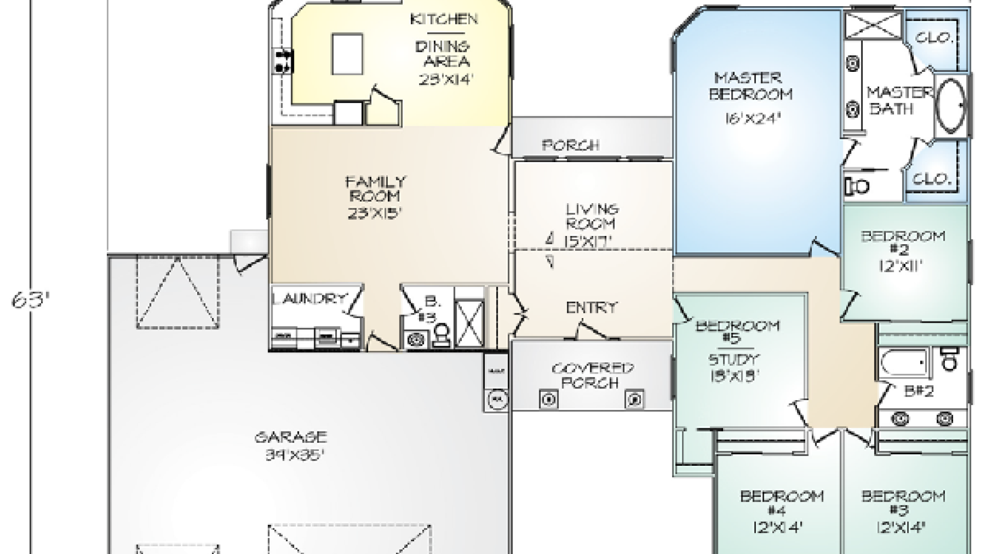
The Avalon panelized kit home boasts an abundance of space. The front entry opens directly into a substantial living room featuring a vaulted ceiling and a respectable view of the back porch and yard through three large windows. Adjoining the living room, the spacious family room offers access to the kitchen and dining room, oversized laundry room, full bath, and garage. A central island and plenty of counter space accentuate the sheer size of the Avalon’s kitchen. The master suite offers a private bath and two separate walk-in closets, while any of the other four bedrooms can easily be modified as a den, home office, or music room. Nine-foot ceilings provide volume to the Avalon. The large three-car garage has ample room for a hobby area or extra storage, and features the ability to drive through to the backyard.

FAQs:

Prefab homes provide you with the benefits of improved quality control, better energy efficiency, faster build times, cost-effectiveness, and customization.

Panelized Kit Home Specs:

  • Total Living Space: 2,765 ft² (257 m²)
  • Bedrooms: 5
  • Bathrooms: 3
  • Garage: 3 + Car
  • Ceiling Height: 9’
  • Covered Porch: 111 ft² (10 m²)
  • Home Plan Cost: Included
  • Building Kit Cost: $177,659
  • Style: 1 Story
  • Minimum Payment: $6,700
Download Free Plan Review Set

Want More Information?

Invalid Input
Invalid Input
Invalid Input
Invalid Input
Invalid Input

Add to Cart

FAQs:

Prefab homes provide you with the benefits of improved quality control, better energy efficiency, faster build times, cost-effectiveness, and customization.

Contact Us

We will contact you and draw up requirements for the project and estimate.
Please enter your first name
Please enter your last name
Please enter a valid email address
Invalid Input